The Perla Del Mar
The Perla Del Mar at Turtle Beach
Welcome to Turtle Beach, a stunning new custom home community nestled in the charming Crystal Beach area. Introducing The Perla Del Mar is —an exceptional new construction residence offering four spacious bedrooms plus a dedicated office, ideal for families, remote work, or hosting guests in comfort.
Designed for luxury and flexibility, the owner’s suite lives like a private resort. Indulge in a spa-inspired retreat featuring a lavish walk-in shower, picturesque windowside soaking tub, and expansive closets that provide both function and elegance.
Three additional generously sized bedrooms ensure everyone has their own space, including one with a private bath and walk-in closet for added comfort and privacy. The heart of the home is an open-concept kitchen, dining, and great room, complete with a wet bar that makes entertaining effortless. A generous pantry and central island create a true chef’s kitchen—perfect for everyday meals and special gatherings alike.
Outdoor living is just as inviting, with two welcoming lanais that extend your living space and capture the relaxed coastal lifestyle.
Immerse yourself in the laid-back charm of Turtle Beach, where pristine shoreline, walkable streets, and delightful seaside dining are just moments away. The Perla Del Mar blends luxury, comfort, and coastal character into one extraordinary home—your private paradise awaits.
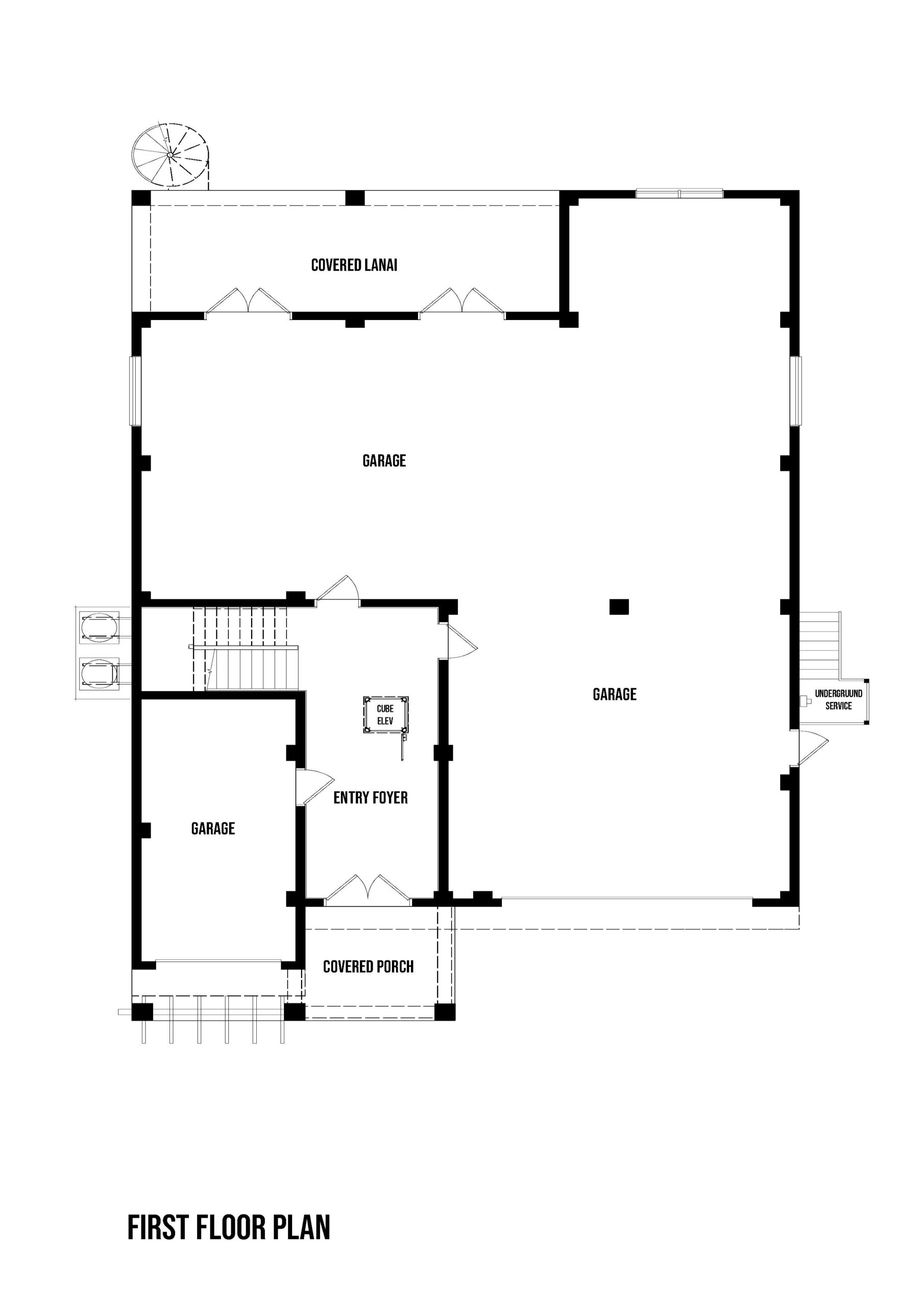
We are building The Perla Del Mar (3,062 living sq ft, total covered 6,268 sq ft) on Lot 48. For more information about this community, you can visit Turtle Beach – Marc Rutenberg Homes
All renderings, floor plans, and visual representations are artist’s conceptual illustrations and are provided for general reference only. They may not accurately depict the final construction, features, materials, or landscaping. Actual homes may vary. Builder reserves the right to make changes without notice.
Features
This custom coastal masterpiece offers four luxurious bedrooms, a private office with an elevated balcony and three spa-inspired bathrooms. The gourmet kitchen showcases premium finishes and seamless design for effortless entertaining and inviting interiors open to serene nature vistas- the perfect harmony of elegance and tranquility.
EXTERIOR
- Metal Roof
- Hardi Siding on the 2nd Floor with Hardi Soffit and Fascia
- Pavers on Driveway and Entry
- Prewire for Outdoor Kitchen- Includes a Gas Stubout
- Vinyl Ceilings on Covered Lanai’s
- Aluminum Powder Coated Spiral Staircase
- 8′ Garage Doors
GOURMET KITCHEN
- 48″ Upper Cabinets, Custom Cabinetry, 36″ Range Hood, Pot Filler and Pot & Pan Drawers
- Stainless Steel 36″ Gas Range, Dishwasher, Fridge and Built in Microwave Drawer
- Quartz Waterfall Kitchen Island with Extra Storage at the Back of Island
- Quartz Countertops in Kitchen and Wet Bar
- Wet Bar with 48″ Upper Cabinets, Custom Floating Shelves and Wine Fridge
- Custom Wood Shelving in Pantry
- Chef’s Sink
- Undercabinet LED Tape Lighting at Kitchen and Wet Bar
INTERIOR
- Security System with Sensors on all Doors and Windows & 2 Keypads
- Prewires for Cameras and Speakers
- Faux Beams in the Great Room, Kitchen and Dining Room
- Custom Trim throughout the Home including Picture Frame Windows & PVC Wains Coating on the First Floor Entryway
- Icynene Insulation
- 10′ Ceiling Heights throughout Home
- 8′ Interior Doors
- Cube Elevator
- Wood Floors throughout Home, including Bedrooms & Stairs
- Upgraded Tile in all Wet Areas
- Utility Room with Upper Cabinets and Wet Sink
PRIMARY SUITE
- Faux Beams in Tray Ceiling in Primary Bedroom
- Floor to Ceiling Shower Wall Tile
- LED Bathroom Mirrors
- Large Custom Shower
- Quartz Countertops
